Az értékesítő:
Nívó Ingatlanforgalmi Szakértői Iroda
+36 70 380 0323

Kiadó iroda/üzlethelyiség Veszprém, 986 000 Ft/hónap, 340 négyzetméter

986 000 Ft/hónap
iroda/üzlethelyiség, 340 négyzetméter
Azonosító:
11593129
Értékesítés típusa:
kiadó
Ingatlan típusa:
iroda/üzlethelyiség
Jelleg:
Iroda
Település:
Veszprém
Alapterület:
340
Ár:
986 000 Ft/hónap
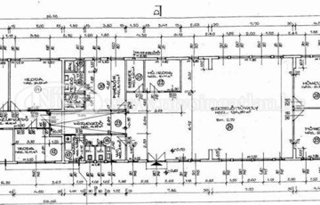
2026. április 01-től Veszprémben a Budapest úthoz és a körgyűrűhöz közel, a Cholnoky városrészben, jól megközelíthető, zárt udvarban, földszinti, 340 m2-es alapterületű telephely/műhely irodákkal, szociális blokkal kiadó. Az ingatlan 5 db iroda helyiségből, 3 műhely részből, szociális blokkokból (zuhanyzó is), közösségi térből, szerver szobából áll. Az ingatlan műhely része kiválóan alkalmas finom mechatronikai eszközök összeszerelése, "tiszta tevékenységre". Belmagasság: 2,7 m. A zárt udvarban megegyezés szerint parkolás biztosított a Bérlők részére. Fűtése gáz fűtés, radiátorokról megoldott, légkondicionálóval felszerelt. Az ingatlan külön almérőkkel ellátott, rezsije fogyasztás után elszámolt. Minimum bérleti idő: 1 év. Bérleti díj: 2.900 Ft/m2 + ÁFA + rezsi/hó. A Tulajdonos elvárása, hogy szerződéskötéskor kaució megfizetése szükséges, ami foglalóként is biztosíték illetve az ingatlan birtokba adásakor a bérleti díj előre megfizetése. Az ingatlan megtekintése irodánkkal előre egyeztetett időpontban történik! Szívesen állunk rendelkezésére! Keresünk és kínálunk eladó és bérbeadó ingatlanokat, albérleteket Veszprém, Balaton, Bakony, Káli-medence régióban. Ügyeleti telefonszámunk: . A Nívó Ingatlanforgalmi Szakértői Iroda teljes eladó és bérbeadó ingatlan és albérlet kínálatát megtekintheti a oldalunkon. Irodai azonosító kód: N4886 Nívó ingatlan: N4886
https://kiadó.hu/kiado/iroda/veszprem/986-ezer-ft;340-negyzetmeter;iroda-jellegu;nincs-megadva-berendezett/11593129