Az értékesítő:
Káplár Márk
+36 30 733 9037

Albérlet, kiadó lakás Tata, 280 000 Ft/hónap, 94 négyzetméter

280 000 Ft/hónap
lakás, 94 négyzetméter
Egész szobák:
4
Ingatlan állapota:
Azonosító:
11587751
Értékesítés típusa:
kiadó
Ingatlan típusa:
lakás
Település:
Tata
Alapterület:
94
Ár:
280 000 Ft/hónap
Emelet:
3. emelet
Fűtés jellege:
Cirkó
Erkély:
Nincs
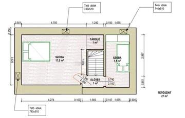
Kiadó igényes, tágas, BÚTOROZOTT lakás Tata egyik legkedveltebb részén – Baji úton Igényes kialakítású, bútorozott, világos és jól átgondolt elrendezésű, több szobás lakás hosszú távra kiadó Tata egyik legkeresettebb és legértékállóbb városrészében, a Baji úton. Az ingatlan ideális választás pároknak, kisebb családnak, illetve mindazok számára, akik csendes, biztonságos környezetben szeretnének élni, ugyanakkor fontos számukra a jó infrastruktúra és a természet közelsége. A lakás elhelyezkedése kiváló: néhány perc sétára található az Olimpiai Edzőtábor, valamint a Tatai-tó, amely egész évben lehetőséget nyújt sportolásra, sétára, pihenésre és feltöltődésre. A környék rendezett, zöldövezeti jellegű, mégis gyorsan elérhető a városközpont és minden fontos szolgáltatás. ________________________________________ A környék előnyei • Eredetileg „tiszti lakótömbökként” épült városrész, rendezett és értékálló környezettel • Csendes, biztonságos lakókörnyezet, kulturált lakóközösség • Iskola, óvoda, üzletek, buszmegálló gyalogosan is elérhetők • A Tatai-tó közelsége természetközeli, aktív életmódot biztosít ________________________________________ Az ingatlan főbb adatai • Tégla építésű társasház • 3. emeleti, tetőtér-beépítéses lakás • Elrendezés: 2 szoba + 2 félszoba • Tágas, jól kihasznált lakótér • Teljesen bútorozott állapotban kiadó ________________________________________ Főbb jellemzők • 33,5 m²-es nappali étkezőrésszel, a lakás központi élettere • Kovácsoltvas korlátos lépcső a tetőtérbe, alatta praktikus tároló • Gépesített, U alakú konyha szép kilátással • Nagyméretű, kádas fürdőszoba • Tágas előtér • Földszinten egy hálószoba • Tetőtérben két szoba • Ízléses, jó állapotú bútorzattal felszerelt helyiségek • Modern burkolatok, esztétikus mennyezeti világítás • Műanyag nyílászárók redőnnyel • Jó minőségű, tömör fa beltéri ajtók • Észak-nyugati fekvés, kellemes délutáni természetes fénnyel • Minden ablakból esztétikus panoráma ________________________________________ Műszaki állapot és épület • Az épület homlokzati szigetelése és a tető felújítása korábban megtörtént • A lakáson belüli villamoshálózat korszerűsített • A lépcsőházi felszálló elektromos vezetékek felújítva • Fűtés: gázkazán, lapradiátoros hőleadókkal • A lakáshoz saját, külön tároló tartozik • Alacsony fenntartási költségek, közös költség: 10.000 Ft/hó ________________________________________ Bérleti feltételek • A lakás hosszú távra kiadó, minimum 12 hónapos bérleti idővel • Bútorozott állapotban kerül bérbeadásra • Dohányzás és kisállat tartása nem megengedett • Igényes, megbízható bérlők részére ideális választás • Elsősorban azoknak ajánlott, akik értékelik a nyugalmat, a rendezett környezetet és a kulturált lakóközösséget ________________________________________ Bérleti díj és beköltözés • Havi bérleti díj: 280.000 Ft • A beköltözés feltétele 2 havi bérleti díjnak megfelelő kaució (560.000 Ft) és az aktuális havi bérleti díj (280.000 Ft) megfizetése ________________________________________ Érdeklődni Káplár Márk Erik ???? kaplar.mark@dot-ing.hu ???? +36 30 733 9037
https://kiadó.hu/alberlet/kiado/lakas/tata/280-ezer-ft;94-negyzetmeter;4-szoba;nincs-megadva-epitesu/11587751