Az értékesítő:
Kenyó Viktória
+36 30 868 6837

Kiadó iroda/üzlethelyiség Budapest VII. ker, 7 020 Euro/hónap, 351 négyzetméter

7 020 Euro/hónap
iroda/üzlethelyiség, 351 négyzetméter
Azonosító:
11575680
Értékesítés típusa:
kiadó
Ingatlan típusa:
iroda/üzlethelyiség
Jelleg:
Üzlethelyiség
Település:
Budapest VII. ker
Alapterület:
351
Ár:
7 020 Euro/hónap
Lift:
Nincs
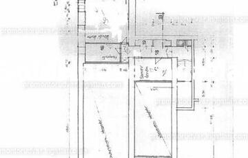
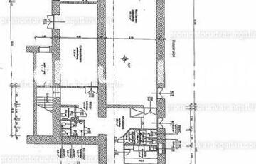
Erzsébetváros központi részén kulturális intézménynek, közösségi térnek alkalmas 351 nm-es, kétszintes ingatlan, - volt mozi - kiadó/eladó Korábban mozi, színház, iskola működött benne. Több helyiséges, rendezvényteremnek, irodalmi kávézónak, kisebb kulturális központnak, cégközpontnak, bemutatóteremnek, színi tanodának, nyelviskolának is kiváló! A tágas előcsarnokban kisebb kávézó kialakítható és akár terasz is igényelhető. Moziterem, (kb. 80-100 fős) kamaraterem, (kb. 50 fős) iroda, mosdók, kazánház találhatók a földszinten. Több utcai és egy udvarra nyíló kijárattal is rendelkezik. Eltérő igény esetén a beépített széksorok megszüntethetők. Az emeleten hangosító szoba, irodának vagy klubszobának használható helyiség, szerver szoba helyezkedik el. Fűtés: cirkó. Akadálymentesített bejárat, a termek is megközelíthetők kerekesszékkel, valamint mozgáskorlátozottak számára külön mosdó is biztosított. Bérleti díj: 7020 EUR+áfa/hó, (20 euro/nm) kb. 2.850.000 Ft+áfa/hó. Üzemeltetési ktsg: 4 EUR/nm+áfa. Kaució: 3 hó. Vétel esetén: 900.000,- EUR+áfa, (kb. 369 M Ft+áfa) (fordított áfa) Megközelítése kiváló: Blaha Lujza tér, Keleti pu., 7-es buszok, metrók, troli percek alatt elérhetők.
https://kiadó.hu/kiado/iroda/budapest-vii-ker/3-ezer-ft;351-negyzetmeter;uzlethelyiseg-jellegu;nincs-megadva-berendezett/11575680