Kiadó iroda/üzlethelyiség Szeged 2 445 Euro

Leírás

KIADÓ TELJES IRODASZINT SZEGED BELVÁROSÁBAN – A KÍGYÓ UTCÁBAN

Modern, reprezentatív iroda a város szívében.

Szeged belvárosának egyik legfrekventáltabb utcájában, a Kígyó utcában kínálunk kiadásra egy teljes irodaszintet egy liftes, teljeskörűen felújított irodaházban. Az ingatlan ideális választás olyan cégek számára, akik számára fontos a presztízs, a kiváló megközelíthetőség és a modern munkakörnyezet.

Az iroda az első emeleten helyezkedik el, az egész szint egyben bérelhető, így teljesen szeparált, önálló működést biztosít.

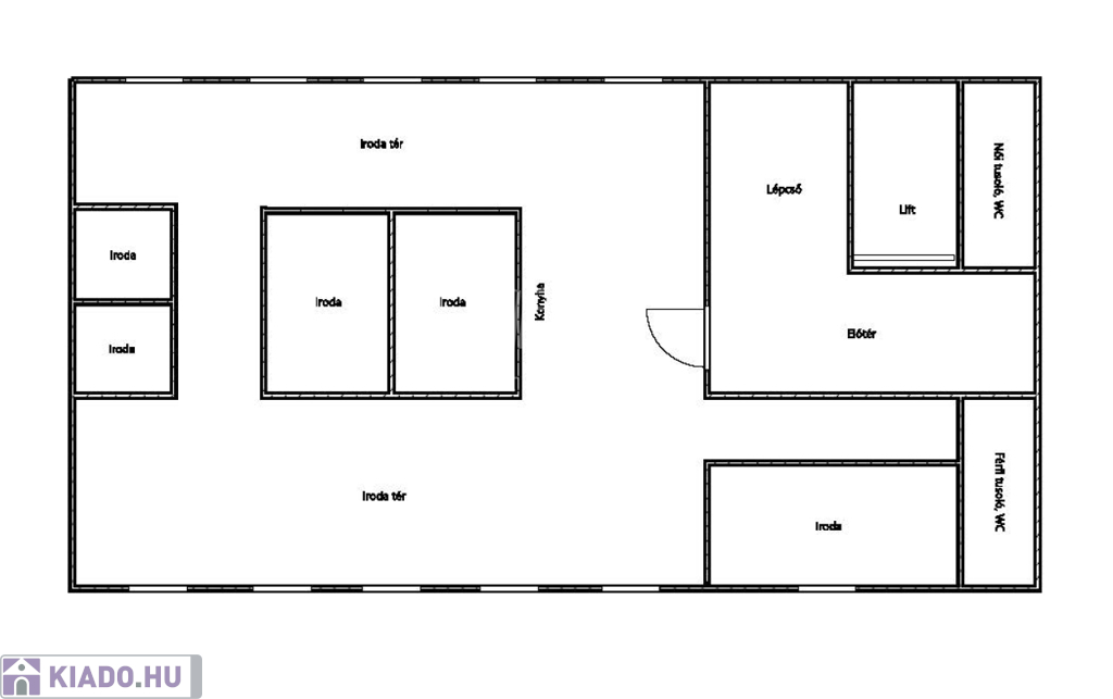
IRODA KIALAKÍTÁSA ÉS MÉRETEI

Teljes alapterület: 252 m²

Kialakítás: modern, egy légterű iroda

A központi térben:

- több, különböző méretű üvegfalú zárt iroda / tárgyaló

- egy nagyobb méretű vezetői iroda

Előtér

Gépesített konyha

Férfi és női WC + tusoló

Bútorozatlan – saját arculatra szabható

Az üvegfalas megoldások világos, inspiráló munkakörnyezetet teremtenek, miközben a zárt irodák megfelelő diszkréciót biztosítanak vezetői vagy tárgyaló funkciókra.

MŰSZAKI TARTALOM

- Fan-coil rendszerű hűtés–fűtés, egyedileg szabályozható

- Teljesen felújított épület

- Lift

- Utcáról nyíló, reprezentatív bejárat

- Korszerű gépészet, alacsony üzemeltetési kockázat

LOKÁCIÓ – BELVÁROS, KÍGYÓ UTCA

A Kígyó utca Szeged egyik legismertebb belvárosi utcája:
- kiváló tömegközlekedés
- éttermek, kávézók, bankok, szolgáltatások közvetlen közelben
- könnyű ügyfélfogadás, presztízsértékű cím
- ideális ügyvédi iroda, IT cég, tanácsadó vállalkozás, szolgáltató központ vagy regionális iroda számára

BÉRLETI FELTÉTELEK

Bérleti díj: 9,7 EUR / m² / hó

Üzemeltetési költség: 3 EUR / m² / hó

Rezsi: fogyasztás alapján

KINEK IDEÁLIS?

Olyan cégeknek, akik belvárosi jelenlétet keresnek

Ügyfélforgalmat bonyolító vállalkozásoknak

Regionális központnak vagy növekvő csapat számára

Akik egy modern, egyben bérelhető, reprezentatív irodát szeretnének Szeged szívében

Iroda/üzlethelyiség részletei

Ár: 2 445 Euro/hónap
Méret: 252 négyzetméter
Azonosító: 11592141
Irodai azonosító: 391523
Cím: Kígyó utca
Jelleg: iroda
Elhelyezkedés: Irodaházban

Egyéb jellemzők

  • Garázs
  • Lift
  • Parkoló

Térkép


Így keressen kiadó ingatlant négy egyszerű lépésben. Csupán 2 perc, kötelezettségek nélkül!

Szűkítse a kiadó ingatlanok
listáját
Válassza ki a megfelelő
kiadó ingatlant
Írjon a hirdetőnek
Várjon a visszahívásra