Kiadó iroda/üzlethelyiség Komárom 900 000 Ft

Leírás

Komárom központjában üzlethelyiség kiadó!!!!
Ha Ön is egy gyorsan megtérülő befektetésben gondolkodik, akkor ez a lehetőség Önre vár!
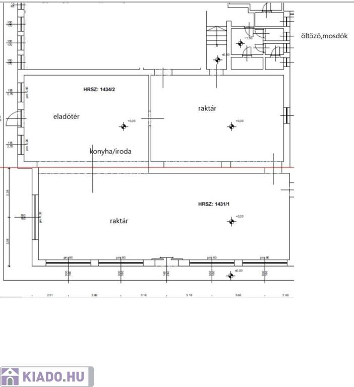
Kiadásra kínálunk Komárom frekventált részén (közelben Duna áruház, számos üzlet, iskola,egyég intézmények) egy 250nm-es teljes körűen FELÚJÍTOTT üzlethelyiséget (üzlet+ raktártér)
Az üzlet két bejárattal rendelkezik: Az egyik az ügyfelek részére, ami természetesen nagy üvegportállal rendelkezik, a másik pedig az árufeltöltésre ad lehetőséget.
Az üzlet számos profilra alkalmas: vegyeskereskedés, irodahelyiség, bemutatóterem, és egyéb szolgáltatóipari tevékenység végzésére. Az üzlet hátsó traktusában került kialakításra a vizesblokk (wc-k, öltöző). Saját víz és villanyórával és klímával rendelkezik. Fűtése korszerű gázkazánnal, padlófűtéssel megoldott, ami a leghidegebb téli hónapban sem terheli meg az üzlet költségeit.
Elosztását tekintve, az üzlettéren kívül egy közel 100 nm -es raktár tér is a rendelkezésre áll, illetve kialakításra került egy kis konyha sarok és egy iroda rész is. De ha az Ön vállalkozásához más elosztás szükséges, akkor a nagy terekből könnyedén kisebb helységek is kialakíthatóak.
Az ingatlanhoz saját vendég parkolók és sorompóval zárt saját parkolók is tartoznak.
A bérlemény AZONNAL KÖLTÖZHETŐ!
Bérleti díj:900.000Ft + ÁFA + reszi
2 havi kaució szükséges
Ha Ön is egy hasonló helyen képzeli el vállalkozásának új helyszínét, hívjon a részletekért!
Szabó Szilvia
Dot-Ing Ingatlan és Hiteliroda
szabo.szilvi@dot-ing.hu
Tel.:06 70 367 76 36

Iroda/üzlethelyiség részletei

Ár: 900 000 Ft/hónap
Méret: 250 négyzetméter
Azonosító: 11345467
Irodai azonosító: 8127
Cím: Komárom
Jelleg: Üzlethelyiség
Helyiségek: 2

Egyéb jellemzők

  • Lift

Így keressen kiadó ingatlant négy egyszerű lépésben. Csupán 2 perc, kötelezettségek nélkül!

Szűkítse a kiadó ingatlanok
listáját
Válassza ki a megfelelő
kiadó ingatlant
Írjon a hirdetőnek
Várjon a visszahívásra