Kiadó ipari ingatlan Veszprém 477 000 Ft

Leírás

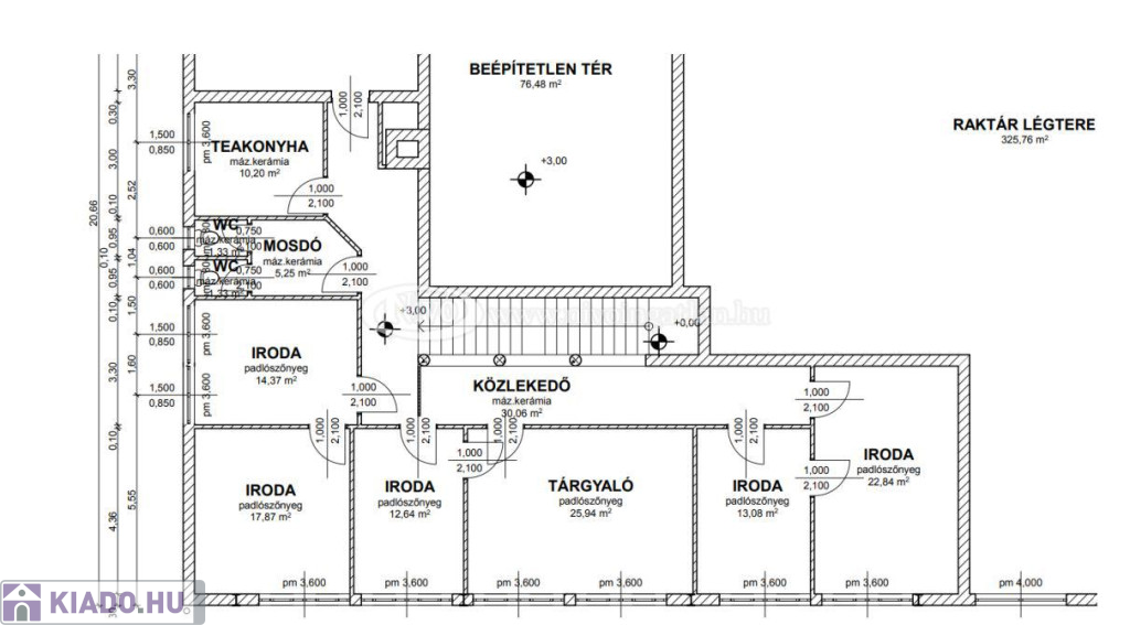
Veszprém iparvárosában irodák 12,64 m2-től 147,04 m2-ig és akár igény szerint magas raktár leválaszthatóan 100-700 m2-ig hozzá kiadó.

A telephelyen irodaépületben 1. emeleti, összesen 147,04 m2-es irodablokk egyben is bérbe vehető illetve az irodák külön-külön is bérelhetőek (106 m2/ 6db iroda): 12,64 m2; 13,08 m2; 14,37 m2; 17,87 m2; 22,84 m2; 25,94 m2; plusz a tárgyaló 40,30 m2). Jelenleg az irodák nagy része egybe is nyílik, de folyosóról külön-külön is megközelíthetőek, gipszkarton fallal leválasztottak.
Bérleti díj: 4.500 Ft/m2 + ÁFA, ami tartalmazza a rezsit és közös helyiségek takarítását is.

Telephely:

- Sorompó, kártyás beléptető rendszer
- Videó felügyelet
- Távőrszolgálat
- Étkező: Fűtött; mikró, automaták, hűtők; takarított
- WC: Fűtött, takarított

Csarnokok:

- igény szerint leválasztható akár 100 m2-es raktárak
- össz. raktár: ~700 m2 két épületben; 325 m2 és 360 m2
- rámpás, nem rámpás rakodási lehetőség
- Magasraktár; min. magasság 6 m
- Ipari kapu
- 3 fázis, ipari áram
- Részben raktári polcok elérhetőek
- Kamerás telepfelügyelet
- Tűzvédelem
- Kamionos rakodási lehetőség
- Parkolás a telephelyen
- Bérleti díj: 1.500 Ft/m2 + ÁFA +rezsi/hó.


Irodarész:
- 1. emeleten
- 12,64 m2-től-147,04 m2-ig bérelhető
- Hűtő- fűtő klímákkal fűtött
- 40 m2 tárgyaló (igény esetén)
- Takarított (igény esetén)
- Étkező, szociális blokk
- Parkolás
- Bérleti díj: 4.500 Ft/m2 + ÁFA, ami tartalmazza a rezsit és közös helyiségek takarítását is.


Bérleti idő: minimum 1 év. A Tulajdonos elvárása, hogy szerződéskötéskor kaució megfizetése szükséges, ami foglalóként is biztosíték illetve az ingatlan birtokba adásakor a bérleti díj előre megfizetése.

Az ingatlan megtekintése irodánkkal előre egyeztetett időpontban történik. Szívesen állunk rendelkezésre!

Keresünk és kínálunk eladó és bérbeadó ingatlanokat, albérleteket Veszprém, Balaton, Bakony, Káli-medence régióban.
Ügyeleti telefonszámunk: .
A Nívó Ingatlanforgalmi Szakértői Iroda teljes eladó és bérbeadó ingatlan és albérlet kínálatát megtekintheti a oldalunkon.

Irodai azonosító kód: N4749 Nívó ingatlan: N4749

Ipari ingatlan részletei

Ár: 477 000 Ft/hónap
Méret: 106 négyzetméter
Azonosító: 11463036
Cím: 8200 Veszprém, Kőbánya utca 2.
Ingatlan állapota: Átlagos
Jelleg: irodaház
Helyiségek: 7

Így keressen kiadó ingatlant négy egyszerű lépésben. Csupán 2 perc, kötelezettségek nélkül!

Szűkítse a kiadó ingatlanok
listáját
Válassza ki a megfelelő
kiadó ingatlant
Írjon a hirdetőnek
Várjon a visszahívásra