Kiadó ipari ingatlan Székesfehérvár 1 176 Euro

Leírás

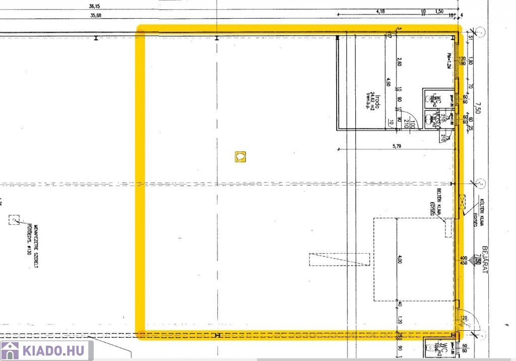
Bip-002186. Déli Ipari Parkban 240m2 alapterületű raktár / műhelycsarnok 2025. július 1-től bérbeadó!

Az ingatlan Székesfehérvár, Seregélyesi úton a Déli Ipari Parkban található Székesfehérvár déli kijáratánál a 8-as számú országos főközlekedési út mentén. Az ipari park bejárata a 8-as úton kialakított körforgalmi csomópont, az csarnok a csomóponttól belső úton közelíthető meg. Az M7-es autópálya kiépített le és felhajtó csomópontja kb. 1 km-re található.

Jellemzők:
• belmagasság: 5,4- 6,4 m
• szekcionált ipari kapu: (400*450 cm) + személybejáró
• nagyteherbírású ipari beton padló
• közművek: ipari áram, gáz, víz, villany
• Fűtés: gázüzemű hőlégbefúvó a csarnokban, a szociális részben (WC, mosdó) külön fűtőkészülék
• klíma: split rendszerű berendezések
• tűzvédelem: épületen belül tűzcsapok, tűzjelző rendszer
25m2-es iroda, szociális blokk kialakított.

Az ingatlan kiválóan alkalmas raktározási tevékenységen túl, műhelynek, összeszerelő üzemnek, nagy-kereskedelmi tevékenységnek is. Jó parkolási lehetőséggel rendelkezik.

Bérleti díj: 4,9 EUR +ÁFA/m2/hó +rezsi +2 hó kaució



Ha felkeltette érdeklődését, hívja irodánkat bizalommal, éljen ingyenes, személyre szabott hitelügyintézés szolgáltatásunkkal. Segítünk továbbá adásvételhez szükséges ügyvédi közreműködésben, energetikai tanúsítvány, valamint értékbecslés elkészítésében.

Ipari ingatlan részletei

Ár: 1 176 Euro/hónap
Méret: 240 négyzetméter
Azonosító: 11539718
Irodai azonosító: 383178
Cím: Déli ipari zóna
Ingatlan állapota: Átlagos
Jelleg: egyéb

Térkép


Így keressen kiadó ingatlant négy egyszerű lépésben. Csupán 2 perc, kötelezettségek nélkül!

Szűkítse a kiadó ingatlanok
listáját
Válassza ki a megfelelő
kiadó ingatlant
Írjon a hirdetőnek
Várjon a visszahívásra